+7 (484) 392-77-77
Небольшие площади – не платите за лишние метры
Есть квартиры с чистовой отделкой – празднуйте новоселье первыми
В каждой квартире ниша для встроенных шкафов или кладовая
Широкие лоджии и балконы. Выше 8 этажа видовые квартиры
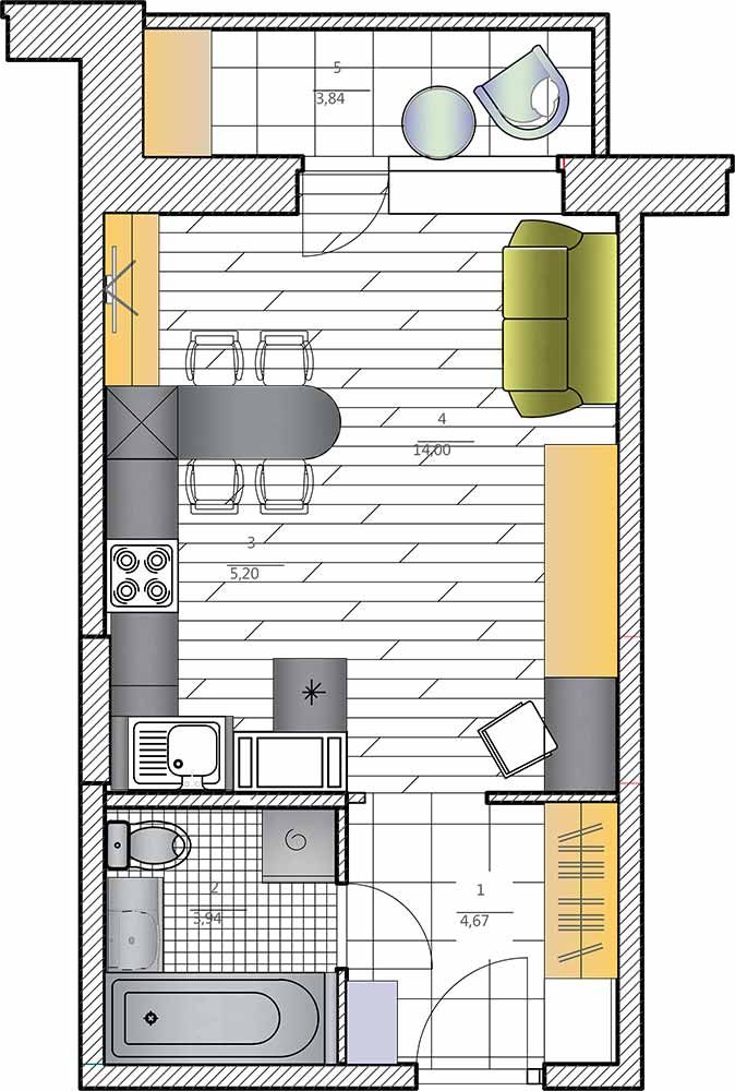
Мы позаботились о том, чтобы ваша семья с комфортом разместилась в новой квартире. Посмотрите, как можно расставить мебель и эффективно использовать всё пространство. При покупке квартиры, вы дополнительно получаете полный проект с рабочей документацией для отделочных работ.
Первое впечатление я расскажу не от дома, а от компании. Меня зовут Владимир, сам я из Муромского региона, но обнинский. Закончил здесь школу, институт. Будучи в очередном отпуске в 20м году, занялся изучением нового жилья в городе. Объездил 6 или 7 компаний, но ни одной не остался доволен. В разговоре с соседкой узнал, что строится новый дом на Комсомольской, сразу поехал, посмотрел дом, стройплощадку и поехал в офис. Сразу сложилось положительное впечатление от профессионалов, которые здесь работают. В отличии от других, а я был у многих обнинских застройщиков, никакого навязчивого сервиса, объясняют всё грамотно, детально. Подробно и честно рассказали обо всех нюансах и перспективах этого района.
Интересовал вопрос надёжности компании, и в других компаниях я не получил удовлетворительного ответа. Связался с обнинскими друзьями – у меня здесь много школьных и институтских друзей – и они выдали рекомендацию: СМУ Мособлстрой - 100% надёжная компания.
Сперва зарезервировал однушку, а потом у меня появилась финансовая возможность, и я согласился на двушку, о чём до сих пор не жалею. И здесь тоже сказывается профессионализм менеджеров, которые не то, чтобы убедили, а обосновали преимущества и самой инвестиции, и этой конкретной квартиры.
Люди отвечают за свою репутацию и поступки, пунктуальные, квалифицированные. Профессиональные, но, повторюсь, без навязывания.
В приёмке квартиры участвовал не я, а племянница, и она тоже осталась довольна, и квартирой, и подходом сотрудников: всё состоялось вовремя, согласовали время, не опоздали, не перенесли, никаких проволочек с документами. У неё двое маленьких детей, и такое отношение было важно.
Дальше по самой квартире будет видно. Сейчас я уже заказал дизайн-проект, но с отделочными работами торопиться не буду, надо пока осмыслить новое пространство, всё продумать, чтобы создать уютную домашнюю атмосферу. Этим дизайнеры будут заниматься, а застройщик уже сделал, что от него требовалось, и сделал это в лучшем виде.
Район стопроцентно мой. Я как увидел, что там дом строится, даже не думал, и другие варианты сразу отпали. Там инфраструктура десятилетиями сложена, и она сохраняется. Детские площадки здесь и в соседних дворах, деревья, шикарные вот эти ёлки. По парку прогулялся: парк чистейший, аккуратный. Около дома машины не жужжат не ездят. У нас на севере одно из главных достояний – это тишина. И вот то же преимущество у старого города: тишина и спокойствие.
Магазин в шаговой доступности. И у меня вообще такого в голове вопроса не было: далеко ли магазин, и это не потому что у меня автомобиль. До продуктов дойти – только спуститься вниз по Комсомольской или на Ленина выйти.
А вот то, что культурные заведения рядом – это важно: и ДК ФЭИ, и кафе, и школа, одна из сильных в городе, городская библиотека.
Купить квартиру я решил в 2021 году. По совету коллеги на работе обратился в СМУ Мособлстрой. Сотрудники договорного отдела очень внимательно отнеслись к моему желанию купить квартиру в строящемся доме. Проконсультировали о порядке заключения сделки, помогли собрать необходимые документы, провести сделку. Быстро стало ясно, что коллектив СМУ Мособлстрой - профессионалы своего дела, работают от души. Работать с ними очень комфортно. Оставалось дождаться окончания строительства и радоваться покупке.
После завершения строительства меня пригласили на приёмку квартиры. Осмотрев квартиру я не нашел в ней крупных недостатков. Места общего пользования и виды из окон оставили приятное впечатление. Дизайн тоже очень понравился, теплые цвета стен напоминают о лете, а я очень люблю тепло. Получив ключи, я вскоре приступил к ремонту.
Район расположения дома - "Старый город" мне очень нравится своей архитектурой. Сталинский ампир выглядит монументально и напоминает о людях, которые жили в них и многое делали на благо собственной страны.
Хочу сказать огромное спасибо коллективу СМУ Мособлстрой за построенный дом (ул. Комсомольская, д.11). Хочу пожелать сотрудникам здоровья и личных успехов, а застройщику реализации новых планов и много новых домов.
Здравствуйте. Обычно я не оставляю отзывы, но в данном случае с удовольствием поделюсь. Старый город я знаю с детства, поэтому выбор места не был проблемой- это лучшая локация в городе моего детства. Не знаток в строительстве, но мне кажется, дом построен отлично. При приемке квартиры я отметила аккуратность и чистоту в подъезде , на лестничных площадках. Особо хочу отметить работу менеджера договорного отдела Ирины.
Никаких проблем с оформлением, подписанием, все вовремя и очень четко. Я просто была поражена высокой степенью подготовки Ирины. После подписания передаточного акта я в тот же день подала документы в мфц на оформление права собственности, и так же быстро я получила документы о регистрации права. Ирина быстро отвечает на все вопросы, всегда на связи, ни разу не опоздала и всегда с готовым пакетом документов. Сделка и ожидание постройки дома для меня прошли практически незаметно. Я всем довольна. А я знаю, о чем говорю -я сама работаю риэлтором в Москве вот уже 20 лет, и сделка по приобретению квартиры в ЖК «Старый город» - одна из самых лёгких в моей карьере.
Удачи вам всем в нашей нелегкой работе!
С удовольствием пишу отзыв о работе специалистов СМУ «Мособлстрой», а также о квартире и доме по ул. Комсомольской, д.11. Когда мы с мамой решили приобрести квартиру в г. Обнинск ознакомились со многими предложениями и посетили не одну новостройку. Выбор пал на старый город и застройщика СМУ «Мособлстрой». Прекрасный район, рядом лес, движение автотранспорта не интенсивное, все необходимое есть рядом в шаговой доступности.
Магазины, парк, школы и даже храм! Сотрудничество с менеджерами Ниной и Ириной, начиная с первого звонка в офис и все последующие контакты (лично, по телефонам) всегда оставляли только приятное впечатление. При подписании договора нам его сначала направили по электронной почте для ознакомления. Условия договора просты и понятны. При регистрации договора ДДУ нас сопровождала Нина. Все прошло максимально быстро, чувствовалось, что сотрудники МФЦ давно работают со СМУ «Мособлстрой», доверяют.
Мы изначально выбирали не квартиру, а район. Место, этажность, тихий район. Старый город нравится: тихо, удобно, маленький трафик, и здесь зелени достаточно, по сравнению с новыми районами. Нормальная квартира, хорошая компания. Отсутствие больших торговых и развлекательных центров не смущает, у нас машина есть: сели и доехали куда надо. Здесь инфраструктура какая-то есть, пятёрка появилась, ещё что-то со временем откроется, маленькие магазинчики, где купить хлеб молоко, есть.
Мы из дома ходим в соседнюю пятёрку, а если что-то надо нормально закупиться, то садимся и едем. Будем переезжать из района Торгового центра. Там тоже тихо, но дома уже старые. Поскольку мы в Обнинске живём давно, все маршруты, куда можно сходить в Старом городе, мы знаем. Можно здесь прогуляться через лес до Кончаловских гор спокойно, тот же самый парк рядом. Не знаю, как насчёт прудов Комсомольских, если когда-нибудь их будут облагораживать, как Белкинские, будет лучше. Сам по себе район спокойный, никто не жужжит вокруг, машины не ездят. Ещё хотелось бы, чтобы город озадачился дорогами и пешеходными дорожками. Если в центре города дворы и тротуары уже достаточно хорошо ремонтируют, то здесь пока ещё ямочный ремонт.
По качеству дома всё хорошо, по качеству квартиры посмотрим. Визуально всё нравится, претензий на момент приёмки нет, по срокам вы уложились.
В плане сделки не было никаких проблем и неожиданностей, ни с вашей стороны, ни по ипотеке, никаких минусов не вспоминается, соответственно, всё прошло как надо.
Я удовлетворён вполне, как придомовой территорией, как она организована и благоустроена и озеленена, и мне понравились места общего пользования, лифт и квартира, которую мне перепланировали по нашему желанию. Нареканий у меня нет. Я, вообще говоря, не Обнинский житель, я из Москвы, первый год мы с женой находимся на отдыхе и решили уехать в более тихое место, которым является Обнинск. Мы его знаем давно и решили, что близость природы, образ жизни, который здесь ведут люди, и городская инфраструктура вполне позволяют рассчитывать на спокойную жизнь.
Мы здесь обитаем недалеко от Обнинска с 1980 года, поэтому все достоинства, которых большинство, (а недостатков мало), нам известны, и мы не ждём чего-то такого, что будет неожиданным для нас.
Расположение дома в плане отсутствия больших магазинов, развлечений, даже более выгодно. Если бы представить, что я молод и у меня маленькие дети, то естественно в старом городе это было бы приятнее, спокойнее и, наверное, безопаснее. Потому что здесь сложившаяся застройка, здесь есть зелёные массивы, и вообще город в этой части зелёный, кроме того здесь есть поблизости парк, спортивные теннисные корты и совсем неподалёку вокзал, который позволяет приехать гостям, не заботясь о личном транспорте, что тоже немаловажно. Я бы считал так, что приобрести квартиру в старом городе – это в определённой степени удача для нас.
Старый город малоэтажный, застройка рассредоточена, и дом, в котором нам повезло приобрести квартиру, сюда вписался очень неплохо и оживил квартал, в котором построен. Хотел бы отметить, что, когда мы выбирали дом, то в рекламе цветовые решения фасадов были другие, явно лучше, чем они сейчас. Фасады были настолько хороши, что трудно было поверить, что такой респектабельный фасад возможно построить в Обнинске. Ну, как оказалось, и не возможно. Кому-то это не понравилось, и он (фасад) изменился и от этого потерял, но не настолько, чтобы совсем разочаровать.
Ещё я бы хотел отметить принципиальную позицию застройщика и подрядчиков в части сроков и обязательств.
Я являюсь жителем старого города уже более 30 лет, И поэтому для меня выбор будущего места жительства был, наверное, уже определён. Я люблю старый город, и когда появился данный проект, просто обрадовалась и заключила договор с СМУ Мособлстрой. Выбор мой ещё обусловлен тем, что данный район достаточно развит в плане инфраструктуры. Здесь достаточно магазинов, существует ряд развлекательных учреждений: городской парк, ДК ФЭИ, к которому я очень трепетно отношусь, поскольку играю в оркестре русских народных инструментов.
Здесь недалеко пруд, лес – это очень тихий, зелёный район. Здесь, в старом городе заложены основы ядерной энергетики нашей страны, первая в мире АЭС. Поэтому выбор мой был осознанный, качеством дома очень я довольна. Вы можете видеть, что и фасад здания современный, нетиповой. Дизайн внутренних помещений, отделка отличается своей оригинальностью. Планировка квартиры выполнена на высоком уровне, всё продумано до мелочей, включая коммуникации и саму планировку комнат. Поэтому я всем довольна и рекомендую сотрудничать с компанией СМУ Мособлстрой.
Я ехал мимо офиса Мособлстроя, заехал узнать, как дела, и в итоге вот купили новую квартиру. Район нам изначально нравится, потому что предпочитаем более зелёную часть города, а дом понравился по планировке. Мы работаем в районе выезда из города, и нам близость вокзала важна. Здесь, в Старом городе, не всё идеально, городу есть, на что обратить внимание: не хватает детских площадок в городе, или они уже старенькие. Там, где на Горького девятиэтажки, есть заброшенная парковая территория.
А также пруды: если есть возможность, то хотя бы вокруг пруда должна быть какая-то тропинка, не заросшая травой по пояс. Запах с очистных, о котором говорили в интернет-сообществах, был довольно интенсивный, но сейчас уже полгода, как не чувствуется ничего такого. Только божественный запах чёрного хлеба.
По квартире есть, конечно, шероховатости, а так понравилось всё, от площади до реализации, всё замечательно, за этим мы сюда и пришли. Вашей компании мы отдали предпочтение давно: в 2014 году мы прошерстили весь интернет по поводу различных строительных организаций и остановились на вашей. И вот получается сколько лет мы живём в доме на Комсомольской, нас всё устраивает. Нас и наших соседей. По шумоизоляции у нас нет таких проблем, как у других застройщиков.
Большое спасибо за помощь с банком. Пока мы пытались получить желаемую процентную ставку, долго ждали одобрения заявки, потом ушли в другой банк, за нами на всё это время забронировали квартиру, нас дождались. По времени было всё удобно, всегда договаривались, как нам удобно, то есть сама сделка отняла минимум рабочего времени.
Мне ещё очень понравились балконы, мне кажется мы будем жить не в квартире, а на балконе)))
Я купила квартиру на этапе строительства в 2016 году. Выбирала из нескольких застройщиков, друзья посоветовали СМУ Мособлстрой. Сразу заказала дополнительные работы по стяжке и штукатурке, чтобы остальной ремонт можно было сделать быстрее. Я осталась довольна качеством квартиры. Хочется отметить аккуратность выполнения работ - стены ровные, окна сделаны без щелей, коммуникации выведены грамотно.
За два года в квартире не появилось трещин, ничего не отвалилось и двери не вышли из косяков, плесени также нет. Хорошая работа! Здорово, что недалеко от дома лес - можно ненадолго выбраться погулять, отдохнуть от работы. И в самом старом городе хорошо, тихо, много зелени.
С компанией СМУ Мособлстрой я нахожусь в стадии сотрудничества уже не впервые, так что имею право, в той или иной степени, на обобщение накопленного опыта и считать свое мнение небезынтересным для потенциальных покупателей недвижимости у этого застройщика. В Обнинске СМУ Мособлстрой работает уже более 10 лет. Это срок, позволяющий сделать вывод о его надежности, тем более, что компания строит без привлечения заемных средств, рассчитывая только на собственные активы.
Качество отличное, подкупает гибкий подход к отделочным работам: можно купить «бетонную коробку», можно коммуникации и пол-потолок с чистовой отделкой по личному проекту, можно полностью под ключ. Меня такой уровень сервиса вполне устраивает, даже слегка жаль, что жилищные проблемы нашей семьи надолго решены, - спасибо СМУ Мособлстрой!
В 2008 году мы стали счастливыми обладателями квартиры в микрорайоне Зайцево, застройщик СМУ МОСОБЛСТРОЙ. Это была наша первая квартира, мы влюбились в этот район. Из окон чудесный вид на лес, слышно пение птиц, по двору бегают белки. В Зайцево, шикарные детские площадки, гуляешь с ребенком и дышишь чистым лесным воздухом. Время шло, семья наша росла и настала необходимость в увеличении жилой площади.
У нас даже не возникло мысли, чтобы сменить место жительства, конечно же решили присматривать другую квартиру - побольше, но только тут - в Зайцево. Застройщик - СМУ МОСОБЛСТРОЙ сделал выгодное предложение и мы переехали в соседний дом. Качеством квартир довольны. Недавно и наши родители тоже перебрались в это тихое место в шумном городе. Многие бояться запаха от очистной станции, но заявляю со всей ответственностью - запаха в домах нет. Мы жили и в 201, и в 205, и в 207доме...Очень рекомендую квартиры в этом районе.

Мы приобрели квартиру в Старом городе на улице Комсомольская. Было очень приятно работать с компанией СМУ Мособлстрой. Дом шестиэтажный, уютный, построен качественно, планировка квартиры удобная. Здорово выполнено благоустройство придомовой территории. Район Старого города тихий, спокойный. Мы очень довольны. Спасибо менеджерам СМУ Мособлстрой за помощь и сопровождение при оформлении документов. Семья Симоненко.
Я недавно приобрел квартиру в ЖК ЗАйцево. Я достаточно долго обдумывал свое решение, выбирал среди различных застройщиков. И в конце концов, все-таки пришел в СМУ Мособлстрой, так как другие застройщики не проявили настолько чуткого внимания к моим вопросам. Более того, насколько я слышал, качество жилья в СМУ Мособлстрой очень хорошее. Ну и вот после сдачи квартиры оказалось, что это действительно так.
При приемке квартиры были выявлены недочеты, но совсем незначительные, такие как регулировка окон. Окна были отрегулированы уже на следующий день. Других недочетов не было. Я могу сказать, что все было построено идеально. Свой выбор я считаю абсолютно правильным, нет ни какого сожаления, что я выбрал квартиру именно в микрорайоне Зайцево, именно у СМУ Мособлстрой. Более того, сотрудники СМУ Мособлстрой, даже после сдачи дома, оказывают серьезную поддержку, в том числе консультируют по разным вопросам, т.е. степень моего довольства на высоте!
Год назад мы приобрели квартиру в ЖК Зайцево, в доме 207 на пр. Ленина. С момента проживания в новой квартире, ни капли не пожалели о своём выборе. Хотелось бы отметить весьма высокое качество постройки жилья, квартира очень тёплая, с удобной планировкой. В нашем доме основной контингент - молодые семьи. Все соседи приятные, общительные и доброжелательные люди. В ЖК Зайцево отличные детские и игровые площадки, детская и взрослая медицинские клиники, магазин в шаговой доступности.
Ещё хотелось бы отметить, что рядом находится лес - и это действительно приятный бонус:) Считаем ,что нам очень повезло!:)
Добрый день, я являюсь участником долевого строительства квартиры в д. 207 по пр. Ленина. Что повлияло на принятие решения о покупке квартиры в ЖК Зайцево, это в первую очередь дружеские отношения с руководством компании и второе это соотношение цены и качества в данном строительстве и хорошее мнение риелторов по поводу возводимого жилья СМУ Мособлстрой. Я оценил качество данного жилья примерно на 4+, есть некоторые мелкие замечания, но я вынужден сразу сказать, что эти замечания, которые проявлялись в процессе проведения отделочных работ, устранялись сотрудниками СМУ Мособлстрой мгновенно. Спасибо, за проделанную работу.
Честный застройщик, высокое качество возводимых домов и грамотный персонал - это и есть СМУ Мособлстрой! Переехали в квартиру в новом доме мкр Зайцево ровно год назад. Квартиры очень тёплые (теплые полы делали во всей квартире - не пользовались.
Просторные нестандартные планировки. Толщины стен и перекрытий достаточно, чтобы не мешал шум ремонта соседей (даже шум ломающихся стен при перепланировке квартиры сверху)! Спасибо дружной команде Мособлстрой за наш уютный новый дом!
Не бойтесь мечтать! Как много среди нас тех, кто привык ютиться в двушке с родителями. Ещё больше тех, кто привык к шаблонной мысли- своё жильё это нереально дорого, а ипотека это кабала. И всё же, я робко мечтала о своих квадратных метрах. Была уверена, что мне поможет только чудо. И чудо случилось-воплотилось в лице СМУ Мособлстрой.
Зашла узнать по чём нынче квадратные метры и всё сложилось в одно мгновение- подобрали идеальный для меня вариант. Оказывается мечта моя была уже рядом - это квартира в милом шестиэтажном доме в Старом городе. На тот момент Моя Мечта была уже почти достроена и у неё было всё -балкон, к тому же застеклённый, входная металлическая дверь, пластиковые окна с гарантией, батареи, счётчики, лифт и за всё это цена - ниже некуда. А расположение вообще лучше не придумаешь- близость школы( и не одной), поликлиника под боком, городской парк, дом культуры и автобусная остановка рядом.. А ещё и вокзал в шаговой доступности!
Надо признать, что коллектив СМУ Мособлстрой сыграл свою роль в моём выборе застройщика: как будто не в офис пришла, а в гости к знакомым. На все мои дотошные расспросы отвечали подробно. А потом, названивала я им с новыми вопросами, а бесконечно вежливые сотрудники терпеливо "разжёвывали" для меня ответы. Сотрудничество с банком и регистрирующими органами у СМУ налажено на ура: всё чётко и понятно. Поэтому процесс оформления документов прошёл быстро, ни единой нервной клетки потрачено не было. Волнение было только приятным - от осознания того, что становлюсь наисчастливейшей владелицей собственной квартиры. Поэтому, ребята, не бойтесь мечтать! Рядом с нами есть СМУ Мособлстрой, которое воплощает наши мечты в реальность. Спасибо Вам за это!
Всем хорошего дня! Последнее время часто оставляю отзывы о своих путешествиях, а тут живу уже столько лет, наслаждаюсь, всеми прелестями нашего района и до сих пор ни словечка не написала... Лучшая квартира, лучший дом, лучшие детские площадки, лучший лес, лучшая инфраструктура, лучшие люди!!! Мы с семьей живем здесь уже 7-ой год, не зная хлопот. Дочь выросла здесь и я даже не представляю, как можно жить где-то еще.
1. Из окна у нас виден лес, если выйти летом рано утром на балкон, то в абсолютной тишине, ты можешь насладиться пением соловья.
2. Продуктовый магазин, магазин детских товаров, аптека, цветы и т.п. находятся через дорогу. Если поздним вечером у вас закончился хлеб или подгузники, (а так бывает))), то через 5 минут муж уже в дверях с пакетами. А сейчас, когда в соседнем доме все это откроется, то муж будет с пакетами через пару минут))) и не надо будет «Так далеко» через дорогу бегать…
3. До детского сада, (кстати, лучшего в нашем городе д/с «Палех») мы с дочей доезжаем за 3 минуты на машине, засекала.
4. В следующем году она идет в школу, до которой столько же.
5. Детская больница, также рядом с домом, другой вопрос, что врачей там толком нет, но сейчас это во всех детских
6. Муж очень любит плавать и ходит в Олимп, до которого также подать рукой.
7. А я люблю ходить за грибами, которые растут в лесу, который виден из окна, и на шашлыки с друзьями)))
8. Также мы с мужем иногда бегаем на лыжной поляне, которая находится, все там же, где лес, который виден из окна))))
9. Отдельное восхищение, как у детей, так и взрослых вызывают возрастные площадки: когда Доча была маленькой, гуляли на одной площадке, потом она подросла, всей честной компанией (подросшими малышами из всех наших рыжих домов) стали гулять на другой площадке. При этом к нам приходит детвора со всей округи. Подростки и взрослые могут поиграть в пинг-понг, волейбол, покачаться на турниках. Баскетбольная площадка зимой превращается в каток для малышей или хоккейный корт… Разве можно еще о чем-то мечтать ребенку, родившемуся в наших рыжих домах.
10. У нашего района есть один минус – название. Я не противник истории и памятных мест, но… фу-фу-фу Зайцево… Поэтому, когда у меня спрашивают, где я живу, я гордо отвечаю в рыжих домах на 51-м. И все меня прекрасно понимают, и иногда даже кажется, что завидуют )))
Только полезная площадь:
предлагаем удобные рациональные планировочные решения квартир при небольшой общей площади. Входная зона станет удобной вместительной прихожей, а в широкой кухне разместится и столовая, и зона для готовки
Места для хранения:
в каждой квартире есть ниша для встроенных шкафов или кладовая. Одежда, пылесос, гладильная доска, лыжи или самокат – всё поместится
Чистовая отделка:
мы знаем, что ремонт – это хлопотное и трудозатратное дело. Вы можете выбрать готовый дизайн-проект чистовой отделки и доверить нам эту сложную работу. Сэкономите силы и время, отпразднуете новоселье в числе первых
Энергосберегающий дом:
эффективные инженерные технологии и качество строительства помогают вам сэкономить на коммунальных платежах. Например, средний платёж за двухкомнатную квартиру (площадь 50 кв.м., проживает 4 человека, свет и вода включены) составляет около 4000 р. зимой и около 3000 р. в тёплое время года
Беспроводное снятие показаний счётчиков:
счётчики на воду и тепло передают показания в управляющую компанию дистанционно, через радиомодемы. Значения всегда точные и безошибочные, вода и свет защищены от воровства, каждую квартиру можно отключить без ущерба для соседей. Кроме того, точный учёт ресурсов вкупе с бережным использованием – это ваша реальная экономия на коммунальных платежах
Уютный двор:
аккуратные дорожки, безопасная детская площадка – это тоже ваш дом. Наши инженеры по озеленению делают аккуратное и стильное благоустройство, сохраняют исторические и сажают новые взрослые деревья и красивые кустарники
Тихий обжитой район:
раньше, чтобы поселиться в Старом городе пришлось бы приобретать вторичное жилье, а сейчас появилась возможность получить новую квартиру в исторической части города
Близость к лесу:
свежий воздух, здоровые прогулки и потрясающий вид из окна – в 250 метрах от дома находится большой смешанный лес площадью около 100 гектаров
Сформированная инфраструктура:
вы сразу и гарантированно получаете поблизости всё что нужно для удобной и комфортной городской жизни: магазины, остановка общественного транспорта, школы и детский сад. Всё необходимое в десятиминутной пешей доступности. Досуг является неотъемлемой частью нашей жизни: к вашим услугам теннисные корты, Дом Культуры ФЭИ, ресторан «Обнинск » и ресторан в парк-отеле Greenway
Новые инженерные сети:
инженерным сетям в этом районе города больше 40 лет. Мы полностью обновляем необходимые коммуникации, чтобы в дальнейшем вы не сталкивались с коммунальными проблемами или авариями.

Оставьте свой электронный адрес, и мы сразу вышлем вам полезную памятку и ответим на дополнительные вопросы, которых нет в списке.
При оплате всей стоимости квартиры сразу, вы получаете максимально выгодную цену, возможную на момент покупки.
Мы готовы предоставить вам отсрочку платежа части стоимости квартиры.
Минимальный первый взнос - 80%, максимальный срок рассрочки 4 месяца.
Приходите, договоримся о рассрочке индивидуально.
Бесплатно бронируем квартиру на неделю.
Новый дом аккредитован в следующих банках: ПАО "Сбербанк", ПАО "Банк ВТБ", АО "Банк ДОМ.рф", ПАО "Московский Индустриальный банк", АО "Россельхозбанк".
Доступна ипотека с господдержкой: процентные ставки от 5,9%; первый взнос от 15%; максимальная сумма кредита для Калужской области 3 млн.руб.; срок подачи заявки до 01.11.2020г
По всем вопросам оформления ипотеки вам поможет ипотечный консультант.
Можно зачесть материнский капитал в качестве первого взноса по ипотеке или в счёт погашения долга по ипотеке. Если вы не берёте ипотеку и расплачиваетесь сразу своими средствами, то мат. капиталом можно оплатить часть стоимости квартиры, при этом мы заключим договор с рассрочкой.
При приобретении наших квартир вы также можете использовать государственные программы субсидирования жилья («отцовский» капитал, ипотека с господдержкой, военная ипотека, и различные жилищные сертификаты)
Сделка заключается в соответствии с 214 ФЗ «Об участии в долевом строительстве». Вы выбираете квартиру – бесплатное бронирование до 14 дней. Заключаем договор участия в долевом строительстве (скачать форму договора). Сопровождение сделки бесплатное, вы оплачиваете только госпошлину за регистрацию договора. Ознакомиться с проектной декларацией можно здесь
СМУ Мособлстрой работает в Обнинске с октября 2005г. За это время мы построили микрорайон на пр. Ленина (ЖК Зайцево, строительство завершено) и 6 домов в Старом городе (улицы Комсомольская и Парковая, застройка ведётся точечным методом). В качественных, тёплых и уютных квартирах живут более 1000 семей. Мы искренне рады за каждого покупателя, доверившегося нам и нашему качеству. Обнинск – небольшой город, и заслуженная репутация требует постоянного подтверждения.
Почему нас выбирают люди? Вот наша миссия и принципы работы:
Нередко наши покупатели повторно обращаются к нам за улучшением жилищных условий. Купили у нас вторую, а некоторые даже третью квартиру.
Почти половина сотрудников СМУ Мособлстрой живёт в наших домах.
Наши подрядчики и клиенты, которые жили или бывали на других объектах обнинских новостроек, отмечают множество положительных отличий в домах СМУ Мособлстрой.
Отдельная наша гордость – внедрение энергосберегающих технологий в иженерные системы домов. Именно мы первыми в Калужской области стали использовать горизонтальную разводку отопления, поквартирный учёт энергоресурсов, погодозависимую автоматику. Это привело к тому, что теперь жильцы могут сэкономить на коммунальных платежах и не тратить лишнего.
С 2017 года в наших домах мы устанавливаем счётчики расходов энергоресурсов с беспроводной передачей данных, и являемся официальными дилерами по Калужской области отечественного производителя такого оборудования. Теперь любая управляющая компания может обратиться к нам за помощью в устройстве сети сбора данных и переоборудовании своих инженерных систем на более экономичные и удобные.
На огромном рынке строящегося жилья небольшая компания сталкивается с большим количеством трудностей. Но, как показывают 15 лет нашей работы, именно небольшой сплочённый коллектив работает эффективно и гибко подстраивается под меняющиеся условия рынка. В каждом клиенте мы видим прежде всего человека, а своей целью – построить для него достойное жильё и решить квартирный вопрос любой сложности.
Игорь Шардин, заместитель генерального директора СМУ Мособлстрой.